Oferty specjalne Szczecin

Zobacz, co dla Ciebie przygotowaliśmy

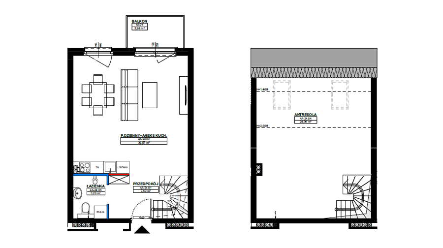
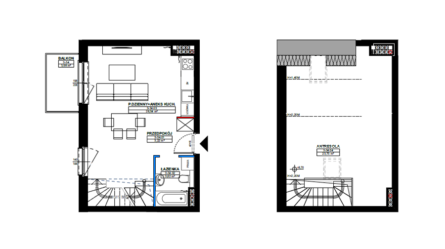
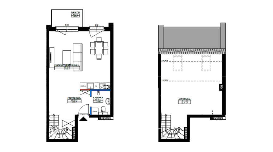
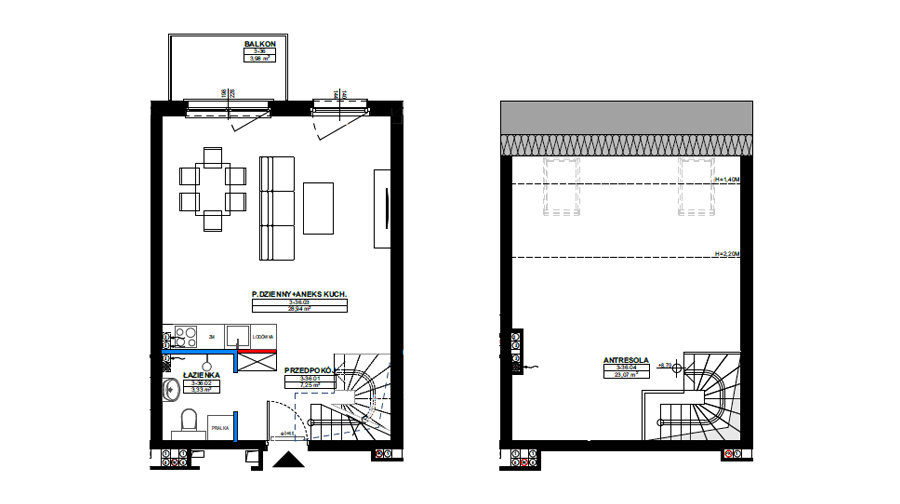
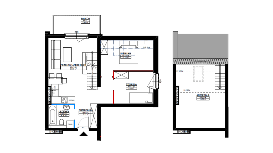
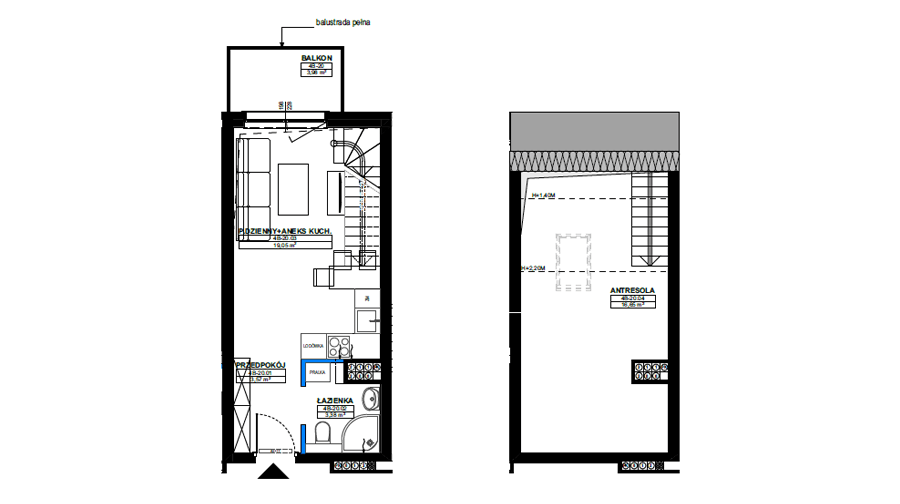
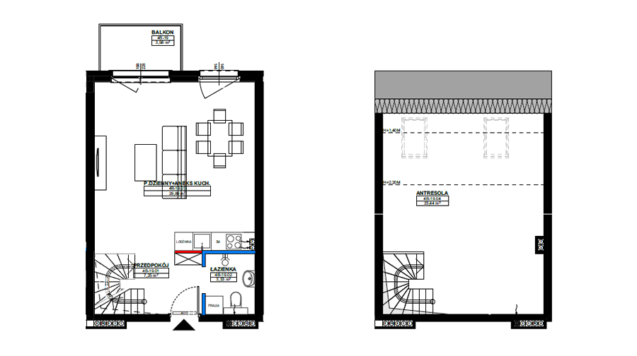
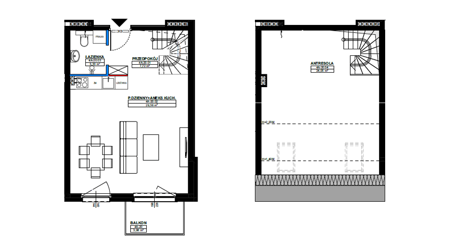
37 nieruchomości spełniających wybrane kryteria
Wybierz widok

Nowa Północ

Etap II, Szczecin, Północ
Go up Phone

ZADZWOŃ - 22 823 97 98
lub wypełnij formularz

Skontaktujemy się z tobą najszybciej jak to będzie możliwe.

    Administratorem danych jest RONSON Development Management sp. z o.o. Dane przetwarzane są w celach marketingowych, zgodnie z treścią udzielonej zgody. Masz prawo cofnięcia zgody w dowolnym momencie bez wpływu na zgodność z prawem przetwarzania, którego dokonaliśmy na jej podstawie do chwili jej wycofania – zgodę możesz cofnąć za pośrednictwem formularza. Masz również prawo dostępu do danych, ich sprostowania oraz usunięcia, jak również złożenia skargi do PUODO. Więcej informacji tutaj.

    * Prosimy o wypełnienie pól oznaczonych “*”